Te koop
Klik op een afbeelding om deze in een groter formaat te bekijken

Aadijk 5A

te Almelo

Bedrijfsruimte
€ 689.000,-
k.k.

Aan de rand van het Bedrijventerrein Turfkade bieden wij u deze prachtige locatie aan voor de verkoop.

Op dit riante perceel is Freriksen Vlees gevestigd, welke wegens verhuizing het object zal gaan verlaten.

Door de aanwezig van een EG erkenningsnummer is dit een Uniek object, welke voor vele food gerelateerde bedrijven zeer interessant kan zijn, denk hierbij aan vlees-/ zuivel-/ vis-/ groente verwerkers maar ook aan cateraars en vele anderen.

Daarnaast is het object is geschikt voor bedrijven welke zoekende zijn naar Turn Key kantoor met bedrijfsruimte en ruim voldoende verhard buitenterrein, waardoor uitbreiding dan wel buitenopslag-/ parkeren ruimschoots mogelijk is.

Tenslotte is het het vermelden waard dat recent de vrijwel complete buitenkant is gerenoveerd en de voorzijde is voorzien van een kunststofcomposiet buitenschil.

Kadastraal :
Gemeente:     Ambt Almelo
Sectie:            K
Nummers:     1419 en 1458
Grootte:         1.810 m²

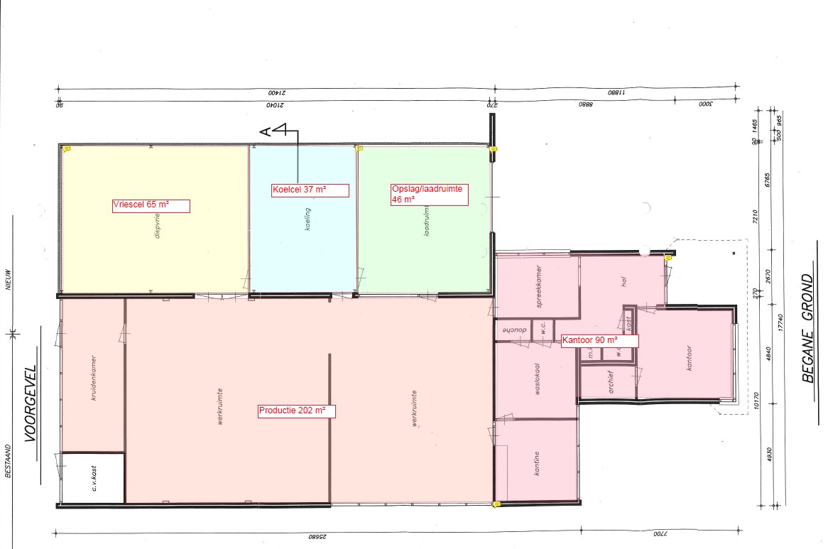
Oppervlakte :
Ca. 90 m² kantoorruimte
Ca. 202 m² productieruimte
Ca. 102 m² koel- en vriesruimte
Ca. 46 m² laadruimte
Ca. 100 m² nissenhut

Daarnaast is er nog een prefab garagebox op eigen terrein aanwezig.

Bereikbaarheid :
Het object is zowel per openbaar vervoer als met eigen vervoer uitstekend bereikbaar. De op- en af-ritten van de Rijksweg A35 zijn binnen circa 5 autominuten te bereiken.

Parkeergelegenheid :
Er zijn voldoende parkeermogelijkheden op eigen terrein.

Bestemmingsplan :
Het object valt binnen bestemmingsplan ‘Noord Turdkade’ en heeft enkelbestemming ‘Bedrijven’.

De volledige bestemmingsplaninformatie is als bijlage aan de brochure gehecht.

Indeling :
Entree, grote kantoorruimte met vast meubilair en archiefruimte, meterkast, 2e kantoorruimte, toilet, archiefkast, CV ruimte, waslokaal met douche en toilet, kantine, diverse werkruimtes met koel en vriescel, kruidenopslag en technische ruimte. Aan de voorzijde is één overheaddeur aanwezig.

Op het buitenterein zijn een romneyloods en garagebox als extra opslagruimte aanwezig.

Opleveringsniveau :
Het object wordt in de huidige staat opgeleverd en is voorzien van o.a.
– koel (ca. 35 m²) & vriescel (ca. 65 m²);
– aanwezige installaties blijven achter;
– vetvangput;
– douche;
– 2 x toilet;
– kozijnen deels hout en deels kunststof;
– EG erkenningsnummer;

Koopsom :
€ 689.000,00 k.k.

Zekerheidsstelling :
Koper dient een bankgarantie of waarborgsom te stellen ter hoogte van 10% van de koopprijs.

Aanvaarding :
In overleg.

Voorbehoud :
Definitieve goedkeuring eigenaar.

Beknopte kenmerken
Vraagprijs:
€ 689.000,-
Adres:
Aadijk 5A
Postcode:
7602 PP
Plaats:
Almelo
Gebruikssoort:
Bedrijfsruimte
Totaal oppervlakte:
540 m²
Bouwjaar:
1970

Google maps

Status
Status
+ Meer tonen
Soort object
Soort object
+ Meer tonen
Prijs
Prijs - slider
€  0 ,-€  5.250.000 ,-
Oppervlakte
Oppervlakte
Provincie
Provincie
Status
Status
+ Meer tonen
Soort object
Soort object
+ Meer tonen
Prijs
Prijs - slider
€  0 ,-€  5.250.000 ,-
Woonoppervlakte
Woonoppervlakte - slider
-2 960