Te huur
Klik op een afbeelding om deze in een groter formaat te bekijken

Klavermaten ong.

te Goor

Kantoor / Bedrijfsruimte / Showroom
op aanvraag

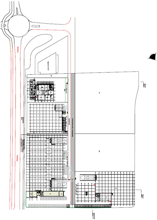
Op bedrijventerrein “Zenkeldamshoek” te Goor bieden wij u op een uitstekende zicht- locatie deze nieuwbouw productie-/opslagruimte met kantoor-/showroomruimte aan voor de verhuur.

Bedrijvenpark Zenkeldamshoek is gelegen aan de entree van Goor en een uitstekende bereikbaarheid, het bedrijvenpark is vanaf de snelweg A1 binnen vijf minuten en zonder verkeerslichten te bereiken.

Mede gezien de ligging van het kavel en de belendingen welke allen binnenkort gesticht zullen worden, staat duurzaamheid op dit kavel hoog in het vaandel.


Oppervlakte & parkeren :
Bedrijfsruimte           ca. 2.125 m²
Kantoorruimte          ca.    198 m²

Meer minder meters zijn bespreekbaar, en verhuurder staat open voor een indeling na wens der huurder.

Voor en naast het object zal ruime parkeergelegenheid gerealiseerd worden met uitstekende mogelijkheden voor laden en lossen door middel van overheaddeuren en eventueel loading docks en ruim voldoende manoeuvreerruimte.

De kavelgrootte bedraagt ca. 3.355 m² en DEELHUUR IS BESPREEKBAAR!

Opleveringsniveau :
In basis zal als onderstaand aan huurder worden opgeleverd:

De bedrijfsruimte:
– Elektrische overheaddeur met een separate loopdeur;
– Loze leidingen als voorbereiding op vloerverwarming met verdeler;
– LED verlichting;
– Een vloerbelasting van tenminste 2.000 kg/m²
– Verharding rondom de bedrijfsunit, uitgevoerd in betonklinkers;
– Een zelfstandige meterkast met aansluitingen voor elektra (3x80A) en water alsmede een krachtstroompunt;
– De bedrijfsruimte wordt in de basis voorzien van elektra rondom.

De kantoorruimte:
– Installaties voor de verwarming en koeling van de ruimten;
– Loze leidingen als voorbereiding op vloerverwarming met verdeler;
– Moderne toiletgroep;
– Een pantry met o.a. boiler, vaatwasser en koelkast;
– Systeemplafond met LED verlichting;
– De kantoorruimte wordt voorzien van diverse WCD en UTP-poorten;
– Behangklare wandafwerking rondom;

In dit stadium zijn eisen en wensen van toekomstige gebruikers betreffende de inrichting en het opleveringsniveau nog bespreek- en onderhandelbaar. Zo kan een bedrijfsruimte op maat en met een eigen identiteit gecreëerd worden. In overleg kunnen units samengevoegd worden, afhankelijk van de wensen van de kandidaat huurder.

Bereikbaarheid :
Het object is gelegen op een zeer goede locatie op bedrijventerrein “Zenkeldamshoek” te Goor en is zowel met eigen als met het openbaar vervoer goed bereikbaar. De provinciale weg N347
is nabij gelegen en diverse busstations bevinden zich in de directe omgeving.

Bestemmingsplan :
Gelegen in het bestemmingsplan “Bedrijventerrein Zenkeldamshoek Goor’’ met enkelbestemming Bedrijventerrein.

Huurprijs :
Op aanvraag. Afhankelijk van oa. opleveringsniveau.

Huurtermijn :
10/15 jaar + 5 optiejaren.

Huurprijsindexering :
Jaarlijks, 1 jaar na ingangsdatum huurovereenkomst volgens module ‘’Indexering Huren’’ van het CBS.

Huurovereenkomst :
Conform ROZ-model.

Betalingen :
Per kwartaal vooruit.

Zekerheidsstelling :
Drie maanden huur inclusief BTW.

Servicekosten :
Huurder betaalt voor de hieronder genoemde zaken en diensten een voorschot ad.  €375,00 per kwartaal, te vermeerderen met BTW.
Jaarlijks wordt er een overzicht gemaakt van de daadwerkelijk gemaakte kosten en afgerekend op basis van de daadwerkelijk gemaakte kosten.

De leveringen en diensten voor water en elektra in het gehuurde worden alle door huurder zelf verzorgd en komen geheel en al voor zijn rekening. Huurder zal zich dan ook vanaf datum sleuteloverdracht contracteren bij de desbetreffende nutsbedrijven.

– Onderhoud overheaddeuren en eventuele docklevellers;

– Onderhoud entree kantoor-/ showroom;

– Onderhoud verwarmings-, koelings-, en ventilatie installaties;

– Onderhoud blusmiddelen en uitbordjes;

– Onderhoud ontruimingsinstallatie;

– Scope 10 & 12 en NEN3140 keuring.

Aanvaarding :
In overleg, in eerste instantie per medio 2026

Bijzonderheden :
De getoonde artest inpressions /toonbeelden zijn nog ontwerpen / voorbeelden, welke in overleg tussen verhuurder, huurder en gemeente Hof van Twente definitief afgestemd dienen te worden

DEELHUUR IS BESPREEKBAAR!

Voorbehoud :
–    Verhuurder
–    Gemeente (aangaande bouwplan)

Beknopte kenmerken
Huurprijs:
Adres:
Klavermaten ong.
Postcode:
7472 DD
Plaats:
Goor
Gebruikssoort:
Kantoor, Bedrijfsruimte, Showroom
Totaal oppervlakte:
2323 m²
Bouwjaar:

Google maps

Status
Status
+ Meer tonen
Soort object
Soort object
+ Meer tonen
Prijs
Prijs - slider
€  0 ,-€  5.250.000 ,-
Oppervlakte
Oppervlakte
Provincie
Provincie
Status
Status
+ Meer tonen
Soort object
Soort object
+ Meer tonen
Prijs
Prijs - slider
€  0 ,-€  5.250.000 ,-
Woonoppervlakte
Woonoppervlakte - slider
-2 960