Te koop
Klik op een afbeelding om deze in een groter formaat te bekijken

Larenweg 36

te 's-Hertogenbosch

Kantoor / Bedrijfsruimte / Beleggingen
op aanvraag

BUSINESSPARK DEN BOSCH NOORD – NU TE KOOP!

De vergunning is onherroepelijk verleend en de bouw is gestart! Dit is dé kans voor ondernemers die willen groeien in hartje Nederland!

Ben jij op zoek naar een bedrijfsruimte in Den Bosch? Businesspark Den Bosch Noord biedt moderne units van 100 tot 155 m², volledig naar eigen wens in te delen en af te werken. Of je nu zelfstandig wilt ondernemen, zichtlocaties wilt benutten of een investering zoekt, hier vind je het allemaal.

Kenmerken van de units:
– Ruimtes van 100–155 m², flexibel in te richten
– Professionele high-end afwerking
– 2–3 exclusieve parkeerplaatsen per unit
– Strategische en centrale ligging in het land
– Uitstekend bereikbaar via A2 en A59
– Ideaal als eigen bedrijf of als beleggingsobject
– Prijzen vanaf € 224.500,- v.o.n. excl. BTW

Ruimte voor ondernemerschap
Elke unit heeft een begane grond met ruime werkvloer en een vaste trap naar de verdieping. Kies voor een kopunit met grote raampartijen of een unit aan de straat voor maximale zichtbaarheid. De units worden casco opgeleverd, maar een turn-key oplevering is ook mogelijk.

Toplocatie
Gelegen op bedrijventerrein De Brand, 24/7 beveiligd en omringd door diverse bedrijven en faciliteiten. Restaurants, cateringservices en een Plus-supermarkt zijn direct om de hoek. Voor ontspanning loop je zo naar het Zilverpark of de Noorderplas.

Groei door in Den Bosch
Profiteer van de bruisende ondernemersgemeenschap, evenementen in de Brabanthallen en ondersteuning voor innovatie en netwerken. Hier vergroot je je naamsbekendheid én netwerk in een stad vol kansen.

Centraal in Nederland
Met een centrale ligging in Brabant zijn alle provincies snel bereikbaar. Directe toegang tot A2 en A59, plus tankstations vlakbij, maakt het makkelijk voor jou én je klanten.

Adres: Larenweg 36, 5234 KA, ’s-Hertogenbosch
Meer info & aanmelden: businessparkdenboschnoord.nl

Grijp deze kans en zet jouw bedrijf in de spotlights op Businesspark Den Bosch Noord!

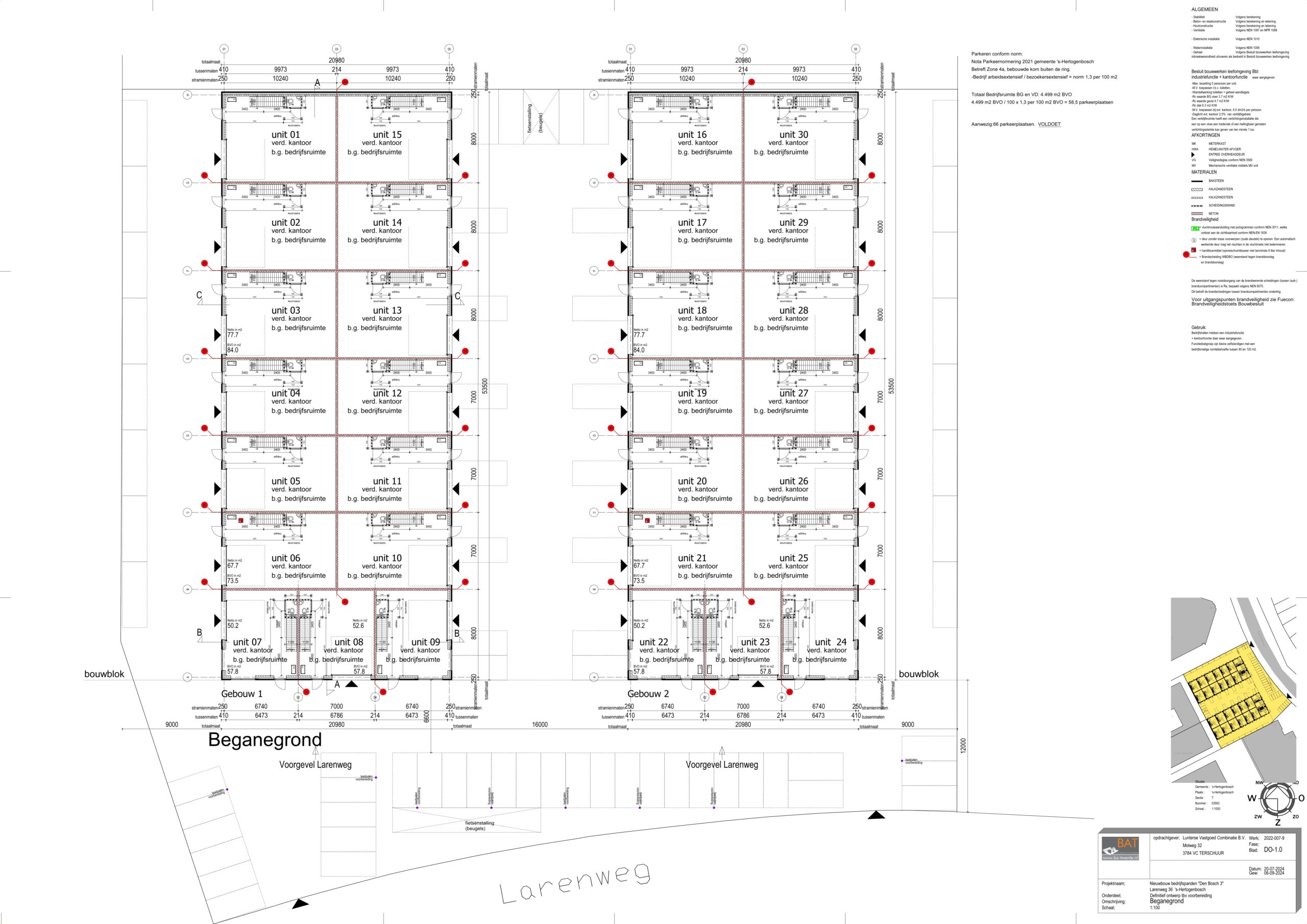
Unit 1: Eindunit € 279.500,- V.O.N. excl. BTW – Verkocht
Unit 2: Tussenunit € 279.500,- V.O.N. excl. BTW – Verkocht
Unit 3: Tussenunit € 279.500,- V.O.N. excl. BTW – Verkocht
Unit 4: Tussenunit € 257.500,- V.O.N. excl. BTW – Beschikbaar
Unit 5: Tussenunit € 257.500,- V.O.N. excl. BTW – Beschikbaar
Unit 6: Tussenunit € 257.500,-  V.O.N. excl. BTW – Verkocht
Unit 7: Kopunit € 234.500,- V.O.N. excl. BTW – Verkocht
Unit 8: Tussenunit € 224.500,- V.O.N. excl. BTW – Verkocht
Unit 9: Kopunit € 234.500,- V.O.N. excl. BTW – Verkocht
Unit 10: Tussenunit € 257.500,- V.O.N. excl. BTW – Verkocht
Unit 11: Tussenunit € 257.500,- V.O.N. excl. BTW – Verkocht
Unit 12: Tussenunit € 257.500,- V.O.N. excl. BTW – Beschikbaar
Unit 13: Tussenunit € 279.500,- V.O.N. excl. BTW – Verkocht
Unit 14: Tussenunit € 279.500,- V.O.N. excl. BTW – Verkocht
Unit 15: Eindunit € 279.500,- V.O.N. excl. BTW – Verkocht
Unit 16: Eindunit € 279.500,- V.O.N. excl. BTW – Verkocht
Unit 17: Tussenunit € 279.500,- V.O.N. excl. BTW – Verkocht
Unit 18: Tussenunit € 279.500,- V.O.N. excl. BTW – Verkocht
Unit 19: Tussenunit € 257.500,- V.O.N. excl. BTW – Verkocht onder voorbehoud
Unit 20: Tussenunit € 257.500,- V.O.N. excl. BTW – Verkocht onder voorbehoud
Unit 21: Tussenunit € 257.500,- V.O.N. excl. BTW – Verkocht
Unit 22: Kopunit € 234.500,- V.O.N. excl. BTW – Verkocht
Unit 23: Tussenunit € 224.500,- V.O.N. excl. BTW – Verkocht
Unit 24: Kopunit € 234.500,- V.O.N. excl. BTW – Verkocht
Unit 25: Tussenunit € 257.500,- V.O.N. excl. BTW – Verkocht
Unit 26: Tussenunit € 257.500,- V.O.N. excl. BTW – Beschikbaar
Unit 27: Tussenunit € 257.500,- V.O.N. excl. BTW – Beschikbaar
Unit 28: Tussenunit € 279.500,- V.O.N. excl. BTW – Beschikbaar
Unit 29: Tussenunit € 279.500,- V.O.N. excl. BTW – Verkocht
Unit 30: Eindunit € 279.500,- V.O.N. excl. BTW – Verkocht

Beknopte kenmerken
Vraagprijs:
Adres:
Larenweg 36
Postcode:
5234 KA
Plaats:
‘s-Hertogenbosch
Gebruikssoort:
Kantoor, Bedrijfsruimte, Beleggingen
Totaal oppervlakte:
100.4 m²
Bouwjaar:
2026

Google maps

Status
Status
+ Meer tonen
Soort object
Soort object
+ Meer tonen
Prijs
Prijs - slider
€  -4 ,-€  3.400.000 ,-
Oppervlakte
Oppervlakte
Provincie
Provincie
Status
Status
+ Meer tonen
Soort object
Soort object
+ Meer tonen
Prijs
Prijs - slider
€  -4 ,-€  3.400.000 ,-
Woonoppervlakte
Woonoppervlakte - slider
-2 960